Immobilien
Hochwertiges Studio-Apartment in bester Lage der Nordstadt Hannover
30167 Hannover, Souterrainwohnung zum Kauf
Kontaktdaten
-
NameDennis Greinert
-
FirmaArt of Estate – Immobilienvermittlung
-
AdresseKastanienallee 17c
14052 Berlin -
E-Mail Zentrale
-
Tel. Zentrale
Objektdaten
-
Objekt IDE79_Vk
-
ObjekttypenFerienimmobilie, Souterrainwohnung, Wohnung
-
Adresse30167 Hannover
Niedersachsen -
EtageEG
-
Etagen im Haus4
-
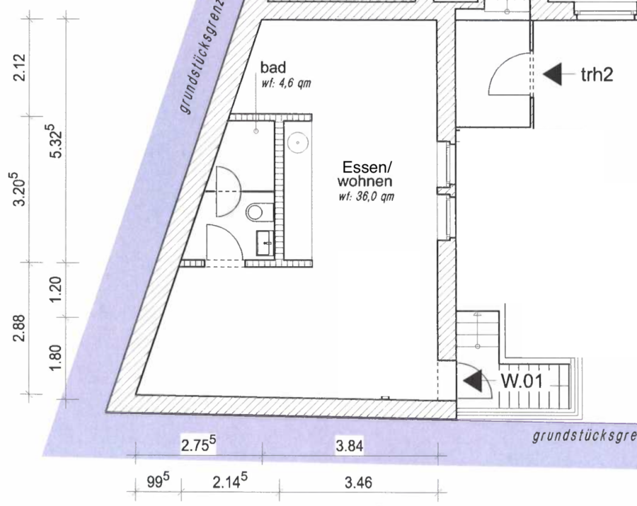
Wohnfläche ca.41 m²
-
Gesamtfläche ca.163 m²
-
Grundstück ca.392 m²
-
Zimmer1,5
-
Schlafzimmer1
-
Badezimmer1
-
HeizungsartZentralheizung
-
Wesentlicher EnergieträgerGas
-
Baujahr1949
-
Letzte Modernisierung2023
-
Zustandvollsaniert
-
Ausstattunggehoben
-
KäuferprovisionVom Käufer mit notarieller Beurkundung zu zahlen.
-
Hausgeld165 EUR
-
Kaufpreis179.000 EUR
Ausstattung / Merkmale
- ✓ Als Ferienimmobilie geeignet
- ✓ Einbauküche
- ✓ Keller
Energieausweis
-
Energieausweiswird bei Besichtigung vorgelegt
Objektbeschreibung
Beschreibung
1,5-Zimmer-Studio-Apartment zum Bezug nach Modernisierung mit neuen Fenstern und hochwertiger Ausstattung in Top-Lage der Nordstadt in Hannover.
Dieses charmante 1,5-Zimmer-Apartment liegt im Souterrain eines dreistöckigen Gebäudes im Herzen der Nordstadt von Hannover. Das gesamte Gebäude sowie die Wohnung wurden 2023/2024 aufwendig renoviert und präsentieren sich in einem modernen, gehobenen Zustand. Zur Ausstattung gehören eine Einbauküche sowie stilvolle Eiche-Echtholzböden mit Fußbodenheizung.
Der Wohnbereich mit ca. m² bietet viel Platz zur persönlichen Entfaltung.
Ein Kellerraum und die voll ausgestattete Einbauküche runden das Angebot ab.
Diese Wohnung ist eine Oase der Ruhe in zentraler Lage. Überzeugen Sie sich selbst – ein Besichtigungstermin lohnt sich!
Ausstattung
- Bezug nach hochwertiger Modernisierung
- Fußbodenheizung
- durchdachter & effektiver Grundriss im Souterrain
- optimale Infrastruktur
- begehbare Dusche mit Rainshower
- Badezimmer mit hochwertiger Ausstattung
- hochwertige Küche mit Einbaugeräten
- Echtholzparkett
- Einbau-Spots im Flur & Badezimmer
- Neue Fenster
- Neue Gas Zentralheizung
- Bus, Tram & U-Bahn fußläufig erreichbar
- rundum Sorglos Paket
Lage
Diese charmante Immobilie befindet sich in attraktiver Wohnlage in Hannover-Nordstadt am Engelbosteler Damm. Der Stadtteil ist bekannt für seine schönen Grünanlagen, seine guten Einkaufsmöglichkeiten und seine Gastronomischen Angebote.
Das Zentrum der Stadt ist nur wenige Minuten entfernt und über die U-Bahn- und Buslinien erreichbar. Einkaufsmöglichkeiten, Schulen und Kindergärten befinden sich in unmittelbarer Nähe.
In direkter Umgebung der Immobilie erstrecken sich ausgedehnte Grünanlagen.
Die dargestellte Position der Immobilie ist nur eine ungefähre Angabe.























