+49 177 2417000 kontakt@artofestate.de

Art of estate

Möblierte 2-Zimmer Wohnung inkl. Internet mit großem Tageslichtbad und Einbauküche in der List

Objekt-ID
k8-mbl_verm
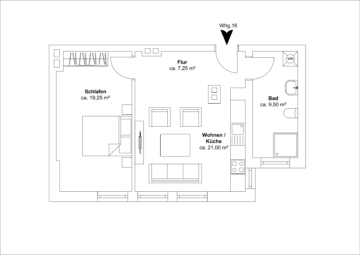
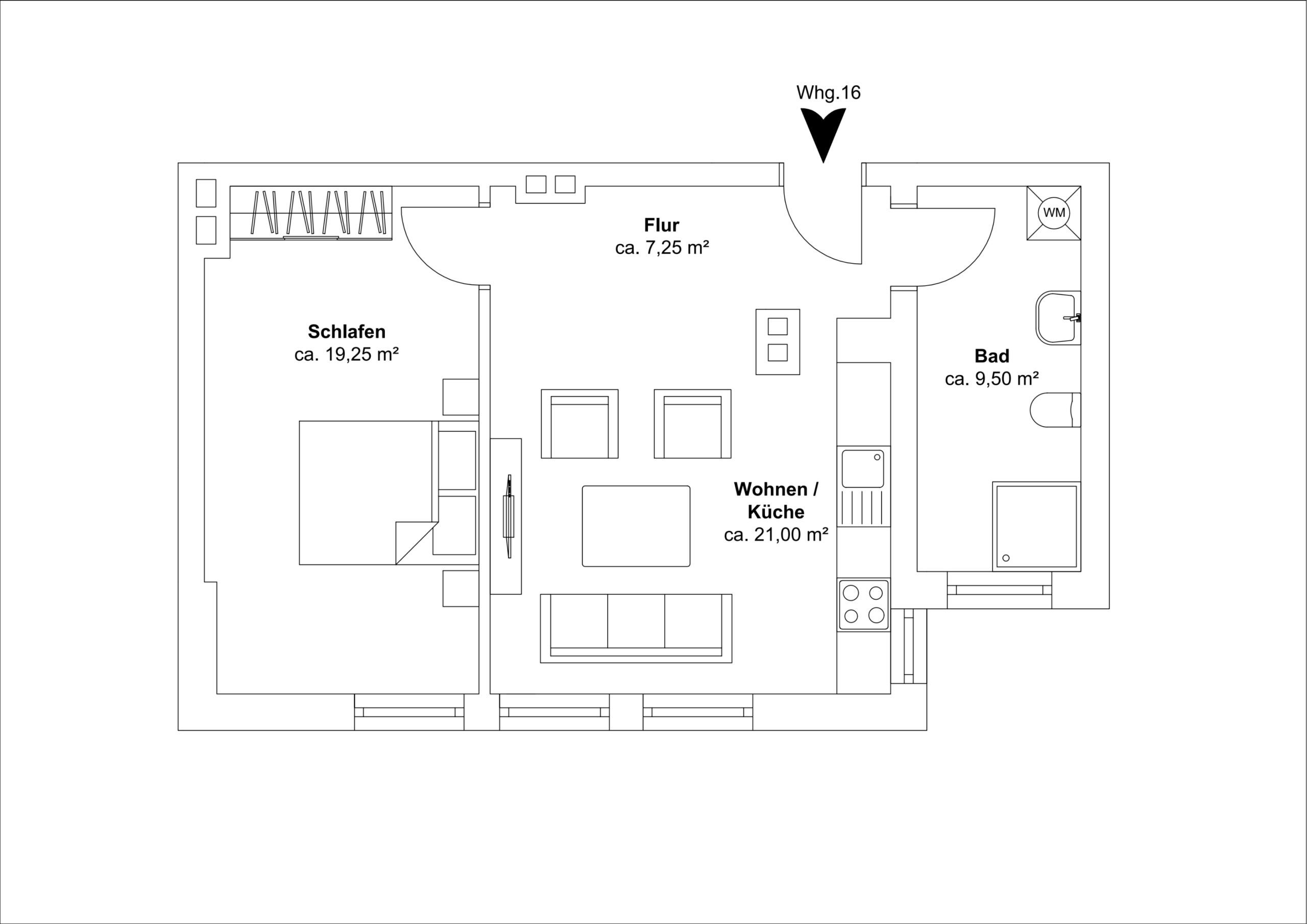
Wohnfläche ca.
57 m²
Zimmer
2
Warmmiete
1.390,00 EUR (Heizkosten enthalten)

Objektdaten

Objekt-ID
k8-mbl_verm
Objekttypen
Etagenwohnung, Ferienimmobilie, Wohnung
Adresse
30161 Hannover
Niedersachsen
Etage
1
Wohneinheiten
20
Wohnfläche ca.
57 m²
Zimmer
2
Schlafzimmer
1
Badezimmer
1
Küche
Einbauküche
Heizungsart
Zentralheizung
Wesentlicher Energieträger
Wärmepumpe
Baujahr
1955
Letzte Modernisierung
2024
Zustand
neuwertig
Ausstattung
gehoben
Verfügbar ab
sofort
Kaution
3570
Kaltmiete
1.190,00 EUR
Miete pro m²
244,68 EUR
Nettorendite (Soll)
84,06 %
Mieteinnahmen (Soll)
290.000 EUR
Nebenkosten
200,00 EUR
Heizkosten
in der Warmmiete enthalten
Warmmiete
1.390,00 EUR (Heizkosten enthalten)

Objektbeschreibung

Die Chance für Wohnungssuchende mit hohem Anspruch eine ganz besondere Wohnung in opimaler Lage möbliert zu mieten.
Wunderschöne 2-Zimmer-Wohnung mit großem Wohn/Esszimmer, Echtholzboden und Badezimmer mit Fenster und hochwertiger Ausstattung.
Die 2-Zimmer-Wohnung bietet Ihnen eine großzügige Wohnfläche von rund 57 m². Der Erstbezug ist ab sofort möglich und dank des optimalen Schnittes stehen Ihnen neben einem großen Wohn/Essbereich mit rund 25 m² Grundfläche noch ein großes Zimmer zur Verfügung. Im Küchenbereich lässt sich eine kleine Essecke einrichten. Bereits eingebaut ist eine hochwertige Marken-Küche mit allen Elektrogeräten.
Erfreuen können Sie sich an neuen Fenstern, dem verlegten Echtholzboden als besonderes Highlight sowie eine begehbare Dusche. Ausreichend Staufläche besitzen Sie zudem dank des eigenen Kellers.
Hell und modern weiß die 2-Zimmer-Wohnung zu begeistern.
Durch die zentrale Lage können Sie schnell viele Einkaufsmöglichkeiten, Tagesstätten und Bildungseinrichtungen in der Umgebung der Straße aufsuchen. Diese lassen sich zu Fuß, mit dem Rad, PKW oder den öffentlichen Verkehrsmitteln wie Bus, U-Bahn und S-Bahn erreichen.

Ausstattung

  • Voll möblierte 2-Zimmerwohnung
  • Internet inkl.
  • durchdachter & effektive Grundrisse
  • optimale Infrastruktur
  • Erstbezug nach hochwertiger Sanierung
  • begehbare & gefließte Dusche
  • hochwertige Küche mit Marken-Einbaugeräten
  • Eiche Echtholzparkett
  • Einbau-Spots im Flur & Badezimmer
  • Neue hochwertige Fenster
  • Aufwendige Vollsanierung der gesamten Wohnung
  • Aufwendige Sanierung des Gemeinschaftseigentums
  • Luft-Motor-Wärmepumpe + Spitzenlastherme – 100KW (gem. KfW EH55EE)
  • Neue Elektrik in allen Wohnungen und Treppenhaus
  • Neue Wohnungseingangstüren
  • Hochwertige Einbauküche
  • Video Gegensprechanlage
  • Keller vorhanden

Lage

Die Wohnung liegt im wunderschönen und begehrten Stadtteil List. Hier trifft vieles Aufeinander: kurze Wege, eine sehr gute Infrastruktur sowie zahlreiche Einkaufsmöglichkeiten, Bäcker, Bars und Restaurants.

Im Süd-Osten grenzt die Eilenriede an die List. Sie ist der größte Stadtwald Europas und eigenet sich hervorragend für sportliche Aktivitäten und erholsame Spaziergänge. Der sich in der Nähe befindliche Erlebnis-Zoo Hannover ist ebenfalls ein beliebtes Ausflugsziel für Jung und Alt.

Die Innenstadt, den Hauptbahnhof und den Flughafen erreichen Sie schnell und bequem mit öffentlichen Verkehrsmitteln sowie dem eigenen PKW. Die nächste Bushaltestelle und Bahnstation sind fußläufig erreichbar.

Zu den Autobahnen gelangen Sie ebenfalls zügig über den Schnellweg.

Energieausweis

Energieausweis
wird bei Besichtigung vorgelegt

Kontakt

Name
Dennis Greinert
Firma
Art of Estate – Immobilienvermittlung
Anschrift
Kastanienallee 17c
14052 Berlin
E-Mail
kontakt@artofestate.de
Telefon
0177-241 70 00
* Pflichtangaben
 SSL-verschlüsselt

Buerozeiten

Mo-Fr

08:30 Uhr - 18:30 Uhr

Sa & So

Nach Absprache

Kontakt Info

Art Of Estate Immobilien GmbH

Kirchstraße 1

15806 Zossen

+49 177 2417000

Copyright © 2026 Art Of Estate. All Rights Reserved.