+49 177 2417000 kontakt@artofestate.de

Art of estate

Stilvoll sanierte 1-Zimmer-Wohnung in Toplage der List – Erstbezug mit Balkon & neuer Einbauküche

Objekt-ID
S18 - Vk
Wohnfläche ca.
44 m²
Zimmer
1
Kaufpreis
198.000 EUR

Objektdaten

Objekt-ID
S18 - Vk
Objekttypen
Ferienimmobilie, Wohnung
Adresse
30161 Hannover
Niedersachsen
Etage
1
Wohnfläche ca.
44 m²
Nutzfläche ca.
54 m²
Balkon-/Terrassen­fläche ca.
10 m²
Zimmer
1
Schlafzimmer
1
Badezimmer
1
Balkone
1
Küche
Einbauküche
Heizungsart
Etagenheizung
Wesentlicher Energieträger
Gas
Baujahr
1955
Letzte Modernisierung
2024
Zustand
vollsaniert
Ausstattung
gehoben
Verfügbar ab
sofort
Käufer­provision
3,57 % zzgl. MwSt.
Hausgeld
110,00 EUR
Kaufpreis
198.000 EUR

Objektbeschreibung

Diese hochwertig sanierte Eigentumswohnung im Hochparterre eines gepflegten Mehrfamilienhauses befindet sich in einer der begehrtesten Wohnlagen Hannovers – der List.
Das Gebäude wurde umfassend modernisiert und präsentiert sich heute in einem zeitgemäßen, sehr gepflegten Zustand.
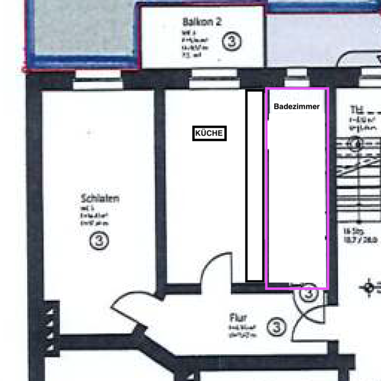
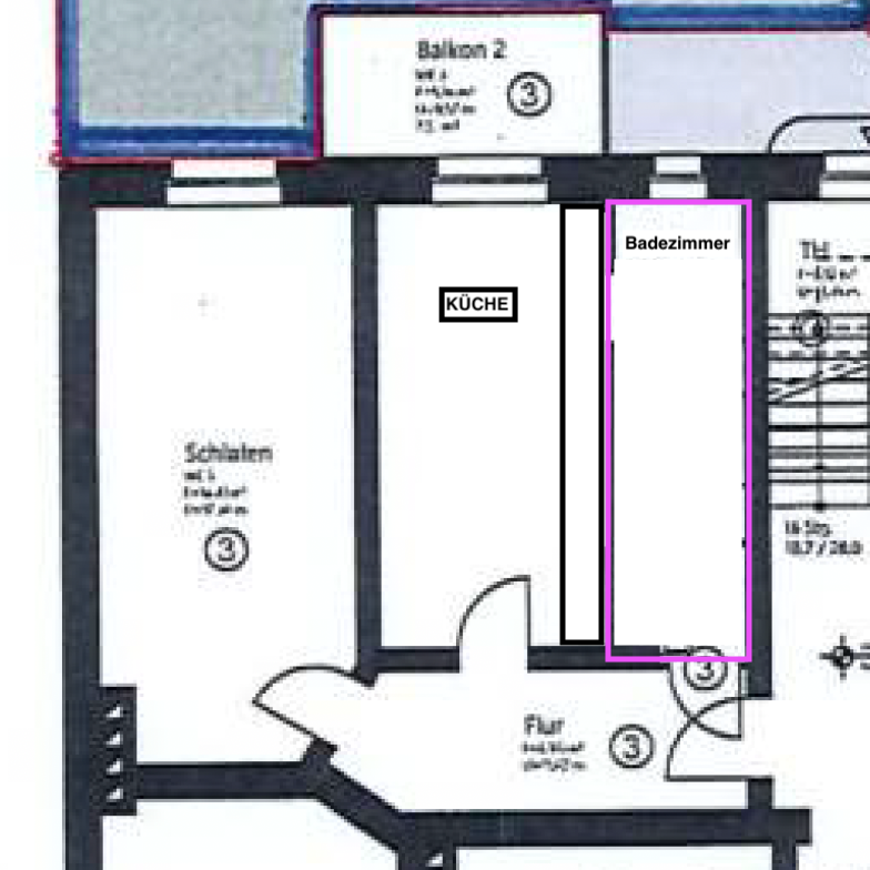
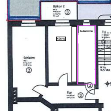
Die Wohnung überzeugt durch eine durchdachte Raumaufteilung, eine hochwertige Ausstattung sowie einen Balkon, der zusätzlichen Wohnkomfort und eine angenehme Erweiterung des Wohnraums bietet. Auf ca. 44 m² Wohnfläche erwartet Sie ein modernes, helles Wohnambiente. Ergänzt wird das Angebot durch einen separaten Kellerraum mit ca. 10 m², sodass insgesamt rund 54 m² Nutzfläche zur Verfügung stehen.
Die Wohnung ist ein Erstbezug nach Sanierung, ab sofort bezugsfrei und kann unmittelbar genutzt werden – ideal sowohl für Eigennutzer als auch für Kapitalanleger.

Ausstattung

Highlights / Keyfacts:

  • Gefragte Wohnlage in Hannover-List
  • Hochparterre in gepflegtem Mehrfamilienhaus
  • Erstbezug nach vollständiger Sanierung
  • Ca. 44 m² Wohnfläche
  • Ca. 54 m² Nutzfläche inkl. Kellerraum und Balkon
  • Balkon als zusätzliche Wohnqualität
  • Moderner, offener Grundriss
  • Hochwertiger Echtholz-Eichenparkettboden
  • Neue, moderne Einbauküche
  • Stilvolles Bad mit hochwertigen Fliesen & Handtuchheizkörper
  • Neue Elektrik, Heizkörper & Leitungen
  • Abgehängte Decken mit integrierten Deckenspots
  • Neue Fenster mit Echtstein-Fensterbänken
  • Sehr gepflegter, modernisierter Gebäudezustand
  • Ab sofort bezugsfrei – sofort nutzbar
  • Geeignet für Eigennutzer & Kapitalanleger

Lage

Die Immobilie befindet sich in einer der gefragtesten Wohnlagen Hannovers – im beliebten Stadtteil List. Die Umgebung zeichnet sich durch eine gelungene Mischung aus urbanem Leben, gewachsener Nachbarschaft und hoher Lebensqualität aus. Besonders hervorzuheben ist die Nähe zur Lister Meile, die mit zahlreichen Einkaufsmöglichkeiten, Cafés, Restaurants und Dienstleistern ein lebendiges Stadtbild bietet.
Die Anbindung an den öffentlichen Nahverkehr ist hervorragend: Mehrere Bus- und Straßenbahnlinien befinden sich in fußläufiger Entfernung und ermöglichen eine schnelle Verbindung in die Innenstadt sowie zu weiteren Stadtteilen. Auch der Hauptbahnhof und die Innenstadt von Hannover sind in kurzer Zeit erreichbar.
Darüber hinaus profitieren Bewohner von einer sehr guten Nahversorgung mit Supermärkten, Bäckereien, Ärzten und Apotheken. Grünflächen und Naherholungsgebiete wie die Eilenriede bieten einen idealen Ausgleich zum urbanen Alltag und unterstreichen die Attraktivität dieser Lage – sowohl für Eigennutzer als auch für Mieter.

Die dargestellte Position der Immobilie ist nur eine ungefähre Angabe.

Energieausweis

Energieausweis
wird bei Besichtigung vorgelegt

Kontakt

Name
Dennis Greinert
Firma
Art Of Estate Immobilien GmbH
Anschrift
Kirchstraße  1
15806 Zossen
E-Mail
kontakt@artofestate.de
Telefon
0177-241 70 00
* Pflichtangaben
 SSL-verschlüsselt

Buerozeiten

Mo-Fr

08:30 Uhr - 18:30 Uhr

Sa & So

Nach Absprache

Kontakt Info

Art Of Estate Immobilien GmbH

Kirchstraße 1

15806 Zossen

+49 177 2417000

Copyright © 2026 Art Of Estate. All Rights Reserved.