Diese charmante Remise auf 2 Etagen befindet sich in einer ruhigen Wohnstraße in Hannover Linden Nord. Auf einer Wohnfläche von ca. 96 m² bietet sie Platz für eine Familie oder auch für ein Paar, das gerne etwas mehr Platz und ein eigenes unvergleichliches Zu Hause bevorzugt.
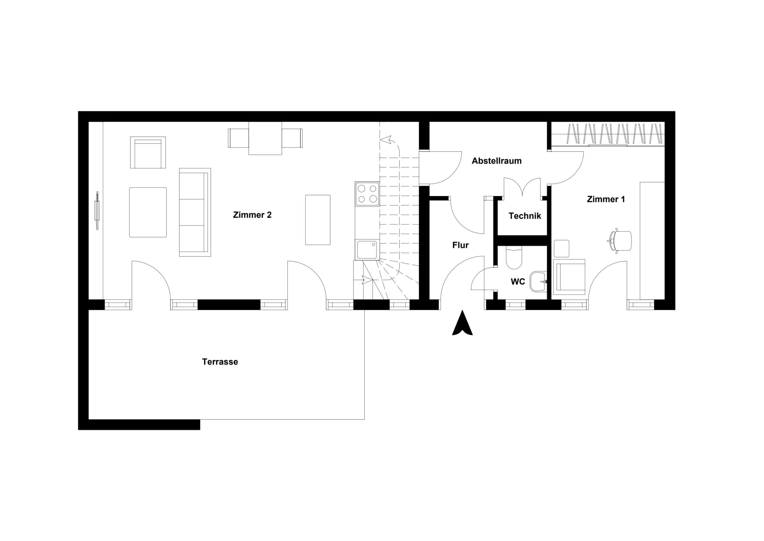
Das Haus wurde im Jahr 2024 saniert und befindet sich somit in einem neuwertigen Zustand. Beim Betreten der Remise gelangen Sie in den Flur. Von hier aus gelangen Sie in das großzügige Wohnzimmer, welches mit Echtholzboden ausgestattet ist und durch seine bodentiefen Fenster viel Licht und eine angenehme Atmosphäre bietet.
Die hochwertige Einbauküche lässt das Herz eines jeden Hobbykochs höherschlagen und bietet genug Platz für eine gemütliche Essgruppe. Von der Küche aus haben Sie Zugang zu der großen Terrasse, auf der Sie an warmen Sommerabenden den Feierabend genießen können. Der kleine Gartenanteil lädt zum Gärtnern und Entspannen ein.
Im Obergeschoss befinden sich zwei Schlafzimmer und das Hauptbadezimmer mit Fußbodenheizung. Die beiden Zimmer sind ideal aufgeteilt. Ein Gäste-WC befindet sich im Erdgeschoss.
Weitere Stellfläche bietet der Keller.
Die Remise wird über eine neue Zentralheizung mit Gas beheizt und verfügt über einen Energieausweis, der die aktuellen Erfordernisse übertrifft.
In der Nachbarschaft finden Sie alle Geschäfte des täglichen Bedarfs, Schulen, Kindergärten sowie eine gute Anbindung an den öffentlichen Nahverkehr. Der nahegelegene Stadtpark lädt zu Spaziergängen und Freizeitaktivitäten ein.
Die Remise ist ab sofort bezugsfrei und wartet nur darauf, von Ihnen entdeckt zu werden. Vereinbaren Sie noch heute einen Besichtigungstermin und lassen Sie sich von diesem einzigartigen Objekt überzeugen. Wir freuen uns auf Ihre Anfrage!



