+49 177 2417000 kontakt@artofestate.de

Art of estate

Erstbezug nach Sanierung – Zweizimmer mit großem Balkon und Einbauküche

Objekt-ID
WE05-Terrasse
Wohnfläche ca.
65 m²
Zimmer
2
Kaufpreis
290.000 EUR

Objektdaten

Objekt-ID
WE05-Terrasse
Objekttypen
Etagenwohnung, Wohnung
Adresse
30161 Hannover
Niedersachsen
Etage
1
Wohneinheiten
20
Wohnfläche ca.
65 m²
Nutzfläche ca.
65 m²
Balkon-/Terrassen­fläche ca.
6 m²
Zimmer
2
Schlafzimmer
1
Badezimmer
1
Balkone
1
Küche
Einbauküche
Heizungsart
Zentralheizung
Wesentlicher Energieträger
Wärmepumpe
Baujahr
1955
Letzte Modernisierung
2023
Ausstattung
gehoben
Käufer­provision
2,98 % zzgl. MwSt.
Vom Käufer mit notarieller Beurkundung zu zahlen.
Kaufpreis pro m²
244,68 EUR
Nettorendite (Soll)
84,06 %
Mieteinnahmen (Soll)
290.000 EUR
Kaufpreis
290.000 EUR

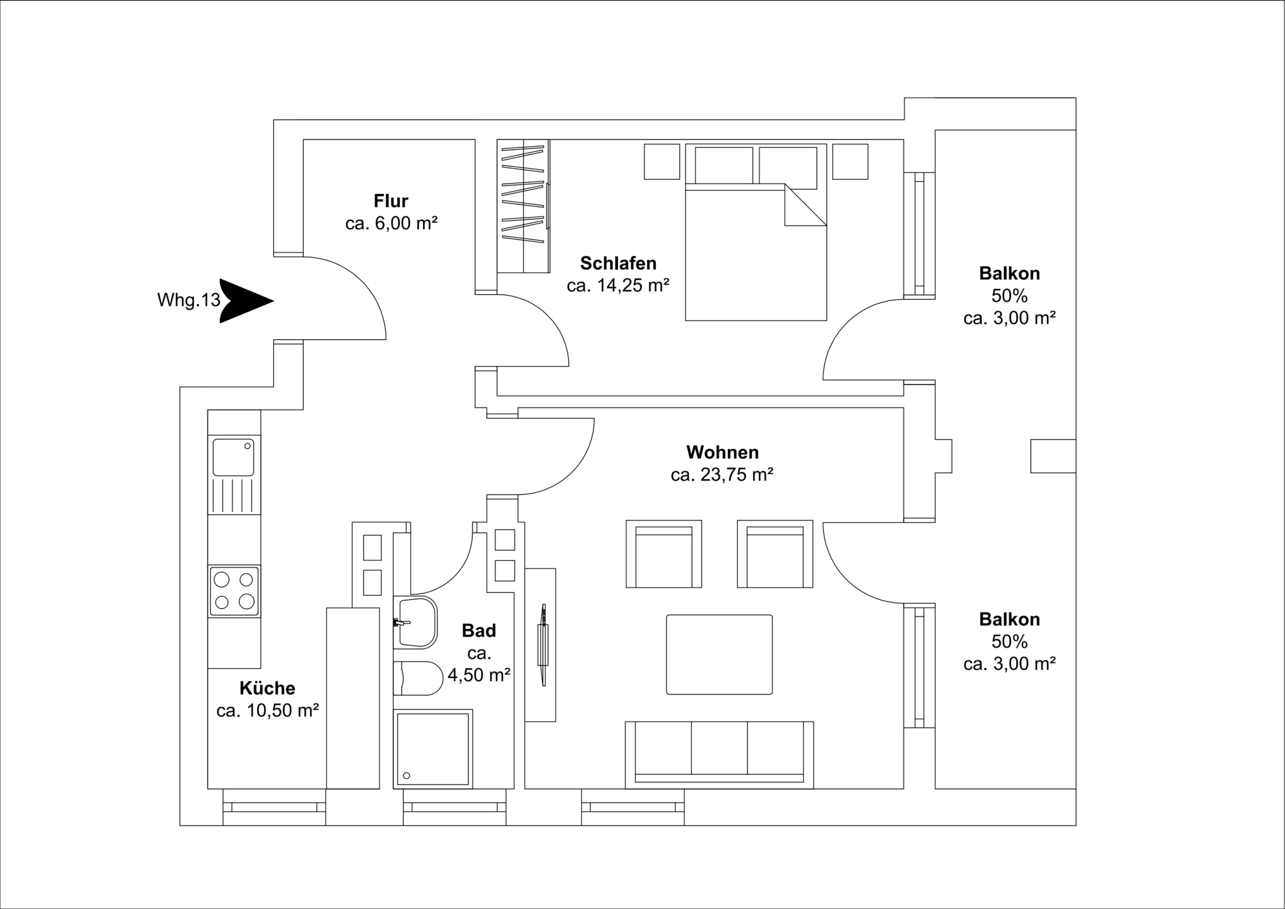
Objektbeschreibung

Die Chance für Wohnungssuchende mit hohem Anspruch eine ganz besondere Wohnung mit großem Balkon in opimaler Lage zu kaufen.
Wunderschöne 2-Zimmer-Wohnung mit großem Balkon ( begehbar vom Schlafzimmer und Wohnzimmer ), Echtholzboden und Badezimmer mit Fenster und hochwertiger Ausstattung.
Die 2-Zimmer-Wohnung bietet Ihnen eine großzügige Wohnfläche von rund 65 m². Der Erstbezug ist ab sofort möglich und dank des optimalen Schnittes stehen Ihnen neben einer großen Küche mit über 8 m² Grundfläche noch zwei große Zimmer zur Verfügung.
In der Küche lässt sich eine kleine Essecke einrichten. Bereits eingebaut ist eine hochwertige Marken-Küche mit allen Elektrogeräten.
Erfreuen können Sie sich an neuen Fenstern, dem verlegten Echtholzboden als besonderes Highlight sowie eine begehbare Dusche. Ausreichend Staufläche besitzen Sie zudem dank des eigenen Kellers.
Hell und modern weiß die 2-Zimmer-Wohnung zu begeistern.
Durch die zentrale Lage können Sie schnell viele Einkaufsmöglichkeiten, Tagesstätten und Bildungseinrichtungen in der Umgebung der Straße aufsuchen. Diese lassen sich zu Fuß, mit dem Rad, PKW oder den öffentlichen Verkehrsmitteln wie Bus, U-Bahn und S-Bahn erreichen.

Ausstattung

  • durchdachter & effektive Grundrisse
  • Großer Balkon mit ca. 12 m² Nutzfläche
  • optimale Infrastruktur
  • Erstbezug nach hochwertiger Sanierung
  • begehbare & gefließte Dusche
  • hochwertige Küche mit Marken-Einbaugeräten
  • Eiche Echtholzparkett
  • Einbau-Spots im Flur & Badezimmer
  • Neue hochwertige Fenster
  • Aufwendige Vollsanierung der gesamten Wohnung
  • Aufwendige Sanierung des Gemeinschaftseigentums
  • Luft-Motor-Wärmepumpe + Spitzenlastherme – 100KW (gem. KfW EH55EE)
  • Neue Elektrik in allen Wohnungen und Treppenhaus
  • Neue Wohnungseingangstüren
  • Hochwertige Einbauküche
  • Video Gegensprechanlage
  • Baujahr ca. 1955
  • Keller vorhanden
  • 2 Garagen stehen optional zur Verfügung ( Aufpreis )

Lage

Die Wohnung liegt im wunderschönen und begehrten Stadtteil List. Hier trifft vieles Aufeinander: kurze Wege, eine sehr gute Infrastruktur sowie zahlreiche Einkaufsmöglichkeiten, Bäcker, Bars und Restaurants.

Im Süd-Osten grenzt die Eilenriede an die List. Sie ist der größte Stadtwald Europas und eigenet sich hervorragend für sportliche Aktivitäten und erholsame Spaziergänge. Der sich in der Nähe befindliche Erlebnis-Zoo Hannover ist ebenfalls ein beliebtes Ausflugsziel für Jung und Alt.

Die Innenstadt, den Hauptbahnhof und den Flughafen erreichen Sie schnell und bequem mit öffentlichen Verkehrsmitteln sowie dem eigenen PKW. Die nächste Bushaltestelle und Bahnstation sind fußläufig erreichbar.

Zu den Autobahnen gelangen Sie ebenfalls zügig über den Schnellweg.

Energieausweis

Energieausweis
wird bei Besichtigung vorgelegt

Kontakt

Name
Dennis Greinert
Firma
Art of Estate – Immobilienvermittlung
Anschrift
Kastanienallee 17c
14052 Berlin
E-Mail
kontakt@artofestate.de
Telefon
0177-241 70 00
* Pflichtangaben
 SSL-verschlüsselt

Buerozeiten

Mo-Fr

08:30 Uhr - 18:30 Uhr

Sa & So

Nach Absprache

Kontakt Info

Art Of Estate Immobilien GmbH

Kirchstraße 1

15806 Zossen

+49 177 2417000

Copyright © 2026 Art Of Estate. All Rights Reserved.