+49 177 2417000 kontakt@artofestate.de

Art of estate

Vermietete Eigentumswohnung in vollsaniertem Haus – Bestlage List

Objekt-ID
vermietete Eigentumswohnung R18
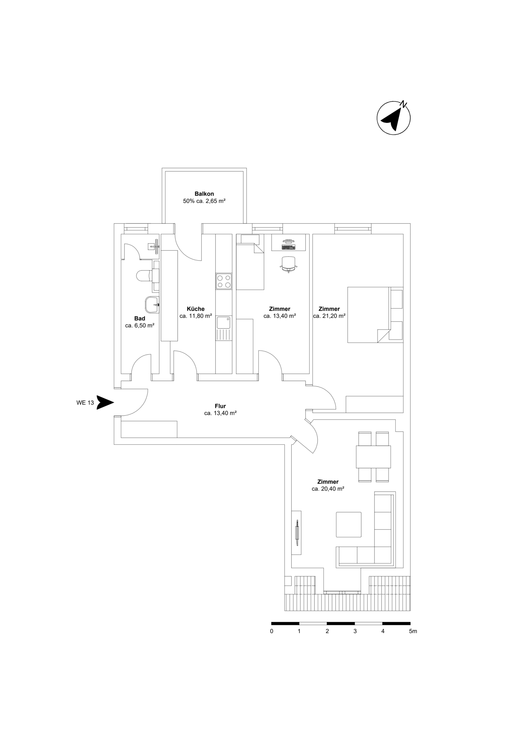
Wohnfläche ca.
93 m²
Zimmer
3
Kaufpreis
395.000 EUR
Warmmiete
1.100,00 EUR (Heizkosten enthalten)

Objektdaten

Objekt-ID
vermietete Eigentumswohnung R18
Objekttypen
Etagenwohnung, Wohnung
Adresse
30161 Hannover
Etage
1
Wohnfläche ca.
93 m²
Nutzfläche ca.
95 m²
Zimmer
3
Schlafzimmer
2
Badezimmer
1
Balkone
1
Küche
Einbauküche
Heizungsart
Zentralheizung
Wesentlicher Energieträger
Gas
Baujahr
1907
Letzte Modernisierung
2023
Zustand
teilsaniert
Ausstattung
gehoben
Status
vermietet
Käufer­provision
2,98 %
Käuferprovision inkl. MwSt.
Kaltmiete
900,00 EUR
Kaufpreis
395.000 EUR
Heizkosten
im Hausgeld enthalten
Warmmiete
1.100,00 EUR (Heizkosten enthalten)

Objektbeschreibung

Diese besondere Wohnung mit Balkon sticht durch Ihre optimale Lage und Ihren ganz eigenen Charme auf dem Wohnungsmarkt hervor.
Das gesamte Haus wurde aufwendig vom Keller bis zum Dach kernsaniert und mit Liebe zum Detail veredelt.
Die Wohnung besticht mit einem großen Balkon, neuen Fenster und einer neuen Wohnungseingangstür. Es handelt sich um einen Altbau aus dem Jahre 1907 mit hohen Decken und dem besonderem Charm. In den letzten Jahren wurde das gesamte Haus aufwendig kernsaniert und nun fügt sich wertigste Moderne in den Charm des unwiederbringbaren Altbau.
Die 3-Zimmer-Wohnung bietet Ihnen eine großzügige Wohnfläche von rund 95 m².
Die Wohnung ist aktuell vermietet.
Hell und modern weiß die 3-Zimmer-Wohnung elegant zu begeistern.
Durch die zentrale Lage können Sie schnell viele Einkaufsmöglichkeiten, Tagesstätten und Bildungseinrichtungen in der Umgebung der Straße aufsuchen. Diese lassen sich zu Fuß, mit dem Rad, PKW oder den öffentlichen Verkehrsmitteln wie Bus, U-Bahn und S-Bahn erreichen.

Ausstattung

  • **Aufzug**
  • gesamtes Haus und Gemeinschaftseigentum aufwendig kernsaniert
  • durchdachter & effektiver Grundriss
  • optimale Infrastruktur
  • Badezimmer mit Fenster
  • Video Gegensprechanlage
  • Neue Fenster
  • Balkon in ruhigen Innenhof
  • Bus, Tram & U-Bahn fußläufig erreichbar
  • rundum Sorglos Paket

Lage

Die Wohnung befindet sich in einem bevorzugten Stadtteil von Hannover in der List und präsentiert sich in einer optimalen Lage mit einer Infrastruktur die jeden alltäglichen Bedarf deckt.
Direkt an der Lister Meile punktet die Wohnung mit fußläufig entfernten Supermärkten, Fachgeschäften, Banken, Apotheken, Drogerien uvm.
Individuelle Gastronomie und vielfältige Sporteinrichtungen ermöglichen ein breitgefächertes Freizeitangebot.
Grundschule, Gymnasium und Kindergärten sind in kurzen Wegen ideal erreichbar.
Der öffentliche Nahverkehr ist in wenigen Minuten fußläufig erreichbar, das Erreichen der Innenstadt von Hannover in wenigen Autominuten.
Kurzum – Das Nonplusultra zum Wohnen ist „die List“, wie die Hannoveraner sagen.
Die List ist eines der attraktivsten Wohngebiete und gehört zu der bevorzugtesten Lage Hannovers.
List besticht durch seine vielen und aufwendig sanierten Gründerzeithäuser, kleinen Cafés und charmanten Boutiquen. Die „Lister Meile“ mit seinen vielen Geschäften und zahlreichen Restaurantsist ein beliebter Anziehungspunkt – nicht nur für Hannoveraner.
Auch die Innenstadt ist mit einer Vielzahl an öffentlichen Verkehrsmitteln in kurzer Zeit zu erreichen. Neben einer guten Verkehrsanbindung, diversen Einkaufsmöglichkeiten und medizinischer Versorgung, bietet die List facettenreiche Möglichkeiten zur Freizeitgestaltung.
Nur wenige Minuten entfernt liegt der bekannte Stadtwald „Eilenriede“. Hier können Sie unbeschwert mit dem Rad fahren, spazieren gehen oder bei schönem Wetter einfach die Natur genießen.
"Alles in Allem" ist der Stadtteil List in der Beliebtheitsskala kaum zu schlagen.

Energieausweis

Energieausweis
wird bei Besichtigung vorgelegt

Kontakt

Name
Dennis Greinert
Firma
Art of Estate – Immobilienvermittlung
Anschrift
Kastanienallee 17c
14052 Berlin
E-Mail
kontakt@artofestate.de
Telefon
0177-241 70 00
* Pflichtangaben
 SSL-verschlüsselt

Buerozeiten

Mo-Fr

08:30 Uhr - 18:30 Uhr

Sa & So

Nach Absprache

Kontakt Info

Art Of Estate Immobilien GmbH

Kirchstraße 1

15806 Zossen

+49 177 2417000

Copyright © 2026 Art Of Estate. All Rights Reserved.