+49 177 2417000 kontakt@artofestate.de

Art of estate

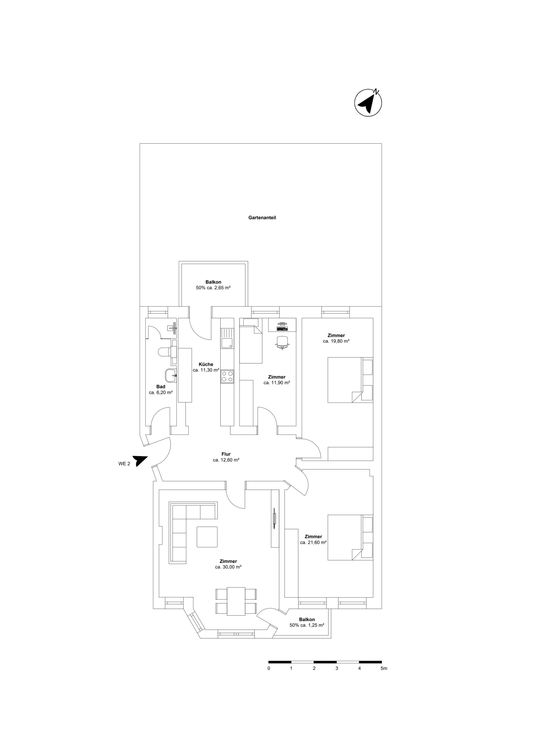
**VERKAUFT** 4-Zimmer Altbauwohnung mit zwei Balkonen und Gartenanteil in Bestlage Hannover List

Objekt-ID
R18_EG - WE02
Wohnfläche ca.
115 m²
Zimmer
4
Kaufpreis
715.000 EUR

Objektdaten

Objekt-ID
R18_EG - WE02
Objekttypen
Erdgeschosswohnung, Wohnung
Adresse
30161 Hannover
Wohnfläche ca.
115 m²
Nutzfläche ca.
145 m²
Gartenfläche ca.
25 m²
Zimmer
4
Schlafzimmer
3
Badezimmer
1
Balkone
1
Küche
Einbauküche
Heizungsart
Zentralheizung
Wesentlicher Energieträger
Gas
Baujahr
1907
Letzte Modernisierung
2023
Ausstattung
Luxus
Käufer­provision
2,98 %
Käuferprovision inkl. MwSt.
Kaufpreis
715.000 EUR

Objektbeschreibung

Diese besondere Wohnung mit 2 Balkonen und großzügigem Gartenanteil im Innenhof sticht durch Ihre optimale Lage und Ihren ganz eigenen Charme auf dem Wohnungsmarkt hervor.
Das gesamte Haus wurde vom Keller bis zum Dach aufwendig kernsaniert und mit Liebe zum Detail veredelt.
Die Wohnung besticht mit 2 Balkonen, Fischgrät-Echtholzboden, Einbauküche mit hochwertigen Geräten und begehbarer Dusche. Es handelt sich um einen Altbau aus dem Jahre 1907 mit hohen Decken und dem besonderem Charm. In den letzten Jahren wurde das gesamte Haus aufwendig kernsaniert und nun fügt sich wertigste Moderne in den Charm des unwiederbringbaren Altbau.
Die 4-Zimmer-Wohnung bietet Ihnen eine großzügige Wohnfläche von rund 115 m².
Der Erstbezug ist kurzfristig möglich und dank des optimalen Schnittes stehen Ihnen neben einer offenen Küche nochvier Zimmer zur Verfügung.
Bereits eingebaut ist eine hochwertige Küche mit allen Elektrogeräten.
Erfreuen können Sie sich an neuen Fenstern, dem verlegten Echtholzboden als besonderes Highlight sowie eine begehbare Dusche. Ausreichend Staufläche besitzen Sie zudem dank des eigenen Kellers.
Hell und modern weiß die 4-Zimmer-Wohnung elegant zu begeistern.
Durch die zentrale Lage können Sie schnell viele Einkaufsmöglichkeiten, Tagesstätten und Bildungseinrichtungen in der Umgebung der Straße aufsuchen. Diese lassen sich zu Fuß, mit dem Rad, PKW oder den öffentlichen Verkehrsmitteln wie Bus, U-Bahn und S-Bahn erreichen.

Ausstattung

  • gesamtes Haus und Gemeinschaftseigentum aufwendig renoviert/saniert
  • privater Gartenanteil
  • durchdachter & effektiver Grundriss
  • optimale Infrastruktur
  • Erstbezug nach hochwertiger Sanierung
  • Fußbodenheizung im Badezimmer
  • begehbare & gefließte Dusche
  • Badezimmer mit Fenster
  • hochwertige Küche mit Einbaugeräten
  • Echtholzparkett
  • Einbau-Spots im Flur, Badezimmer und Küche
  • Video Gegensprechanlage
  • Neue Fenster
  • Balkon in ruhigen Innenhof
  • Bus, Tram & U-Bahn fußläufig erreichbar
  • rundum Sorglos Paket

Lage

Die Wohnung befindet sich in einem bevorzugten Stadtteil von Hannover in der List und präsentiert sich in einer optimalen Lage mit einer Infrastruktur die jeden alltäglichen Bedarf deckt.
Direkt an der Lister Meile punktet die Wohnung mit fußläufig entfernten Supermärkten, Fachgeschäften, Banken, Apotheken, Drogerien uvm.
Individuelle Gastronomie und vielfältige Sporteinrichtungen ermöglichen ein breitgefächertes Freizeitangebot.
Grundschule, Gymnasium und Kindergärten sind in kurzen Wegen ideal erreichbar.
Der öffentliche Nahverkehr ist in wenigen Minuten fußläufig erreichbar, das Erreichen der Innenstadt von Hannover in wenigen Autominuten.
Kurzum – Das Nonplusultra zum Wohnen ist „die List“, wie die Hannoveraner sagen.
Die List ist eines der attraktivsten Wohngebiete und gehört zu der bevorzugtesten Lage Hannovers.
List besticht durch seine vielen und aufwendig sanierten Gründerzeithäuser, kleinen Cafés und charmanten Boutiquen. Die „Lister Meile“ mit seinen vielen Geschäften und zahlreichen Restaurantsist ein beliebter Anziehungspunkt – nicht nur für Hannoveraner.
Auch die Innenstadt ist mit einer Vielzahl an öffentlichen Verkehrsmitteln in kurzer Zeit zu erreichen. Neben einer guten Verkehrsanbindung, diversen Einkaufsmöglichkeiten und medizinischer Versorgung, bietet die List facettenreiche Möglichkeiten zur Freizeitgestaltung.
Nur wenige Minuten entfernt liegt der bekannte Stadtwald „Eilenriede“. Hier können Sie unbeschwert mit dem Rad fahren, spazieren gehen oder bei schönem Wetter einfach die Natur genießen.
"Alles in Allem" ist der Stadtteil List in der Beliebtheitsskala kaum zu schlagen.

Energieausweis

Energieausweis
wird bei Besichtigung vorgelegt

Kontakt

Name
Dennis Greinert
Firma
Art of Estate – Immobilienvermittlung
Anschrift
Kastanienallee 17c
14052 Berlin
E-Mail
kontakt@artofestate.de
Telefon
0177-241 70 00
* Pflichtangaben
 SSL-verschlüsselt

Buerozeiten

Mo-Fr

08:30 Uhr - 18:30 Uhr

Sa & So

Nach Absprache

Kontakt Info

Art Of Estate Immobilien GmbH

Kirchstraße 1

15806 Zossen

+49 177 2417000

Copyright © 2026 Art Of Estate. All Rights Reserved.