+49 177 2417000 kontakt@artofestate.de

Art of estate

Exklusive Dachgeschosswohnung mit Einbauküche zum Erstbezug

Objekt-ID
F20 Penthouse
Wohnfläche ca.
85 m²
Zimmer
3,5

Objektdaten

Objekt-ID
F20 Penthouse
Objekttypen
Dachgeschosswohnung, Wohnung
Adresse
30165 Vahrenwald-List Hannover
Etage
3
Wohnfläche ca.
85 m²
Nutzfläche ca.
103 m²
Zimmer
3,5
Schlafzimmer
2
Badezimmer
1
Heizungsart
Zentralheizung
Wesentlicher Energieträger
Gas
Letzte Modernisierung
2022
Ausstattung
gehoben
Käufer­provision
2,98 % inkl. der gesetzlichen Mehrwertsteuer
2,98 % – Nach notarieller Beurkundung vom Käufer zu zahlen

Objektbeschreibung

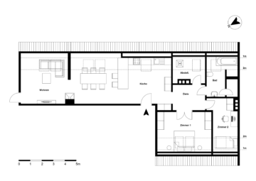
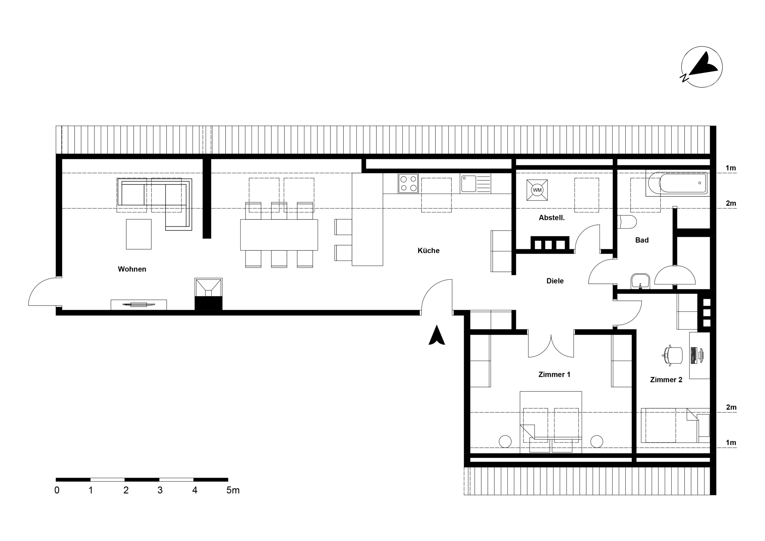
Hochwertigste 3,5-Zimmer-Wohnung mit Echtholzboden und Badezimmer mit Dusche und Badewanne.
Die Dachgeschosswohnung bietet Ihnen eine großzügige Wohnfläche von rund 85 m² ( Nutzfläche ca. 103 m² ). Der Erstbezug ist sofort möglich und dank des optimalen Schnittes stehen Ihnen neben einer großen Wohnküche noch drei große Zimmer zur Verfügung. Die Räume können beispielsweise als Schlaf- und Kinderzimmer genutzt werden.
In der Küche lässt sich eine Essecke einrichten. Bereits eingebaut ist eine hochwertige Marken-Küche mit Elektrogeräten.
Erfreuen können Sie sich an neuen Fenstern, dem verlegten Echtholzboden als besonderes Highlight sowie eine begehbare Dusche. Ausreichend Staufläche besitzen Sie zudem dank des eigenen Kellers und hohen Decken.
Hell und modern weiß die 3,5-Zimmer-Dachgeschosswohnung zu begeistern. Das Dach wurde mit Ausbau des Dachgeschosses komplett neu gedämmt und eingedeckt. Vor rund 2 Jahren wurde ebenfalls der Rest des Hauses saniert und ist daher sehr modern und hochwertig. Für die künftigen Eigentümer gibt es somit keinerlei Sanierungsstau und es fallen keine unerwarteten Kosten an.
Durch die zentrale Lage können Sie schnell viele Einkaufsmöglichkeiten, Tagesstätten und Bildungseinrichtungen in der Umgebung der Straße aufsuchen. Diese lassen sich zu Fuß, mit dem Rad, PKW oder den öffentlichen Verkehrsmitteln wie Bus, U-Bahn und S-Bahn erreichen.

Ausstattung

**Exklusive Dachgeschosswohnung mit 85 m² Wohnfläche und 103 m² Nutzfläche**

  • Das Haus ( Gemeinschaftseigentum ) wurde kürzlich rundum saniert
  • Rundum-Sorglos-Paket
  • durchdachter & effektive Grundrisse
  • optimale Infrastruktur
  • Erstbezug nach hochwertiger Sanierung
  • begehbare & gefließte Dusche
  • Badezimmer mit Fenster und Badewanne
  • hochwertige Küche mit Einbaugeräten
  • Echtholzparkett
  • Einbau-Spots im Flur & Badezimmer
  • Neue Fenster
  • Bus, Tram & U-Bahn fußläufig erreichbar
  • rundum Sorglos Paket

Lage

Die Wohnung liegt im bevölkerungsreichsten Stadtbezirk Vahrenwald-List. Dieser ist aus den beiden Orten Vorenwalde, erstmals 1266 belegt, und List entstanden. Der Bezirk zeichnet sich durch eine sehr gute innenstadtnahe Lage, öffentliche Verkehrsmittel und schönen Plätzen aus.
In der Straße und in unmittelbarer Nähe finden Sie Bushaltestellen, U-Bahn-Stationen oder können in weniger als zehn Minuten Fußweg zum Bahnhof Hannover-Nordstadt gehen. Mit der Bahn sind Sie drei Minuten später am Hauptbahnhof und im Stadtzentrum.
In den Stadtteilen Vahrenwald und List finden Sie viele schöne Plätze, wie beispielsweise den zwölf Gehminuten entfernten Jahnplatz, den Vahrenwalder Park, den Moltkeplatz und den Bonifatiusplatz. Hier können Sie verweilen oder mit Ihren Kindern spielen. Die Nähe zur Eilenriede und dem Mittellandkanal bieten vielfältige Erholungsmöglichkeiten.
Im Stadtteil List finden Sie außerdem die Fußgängerzone Lister Meile. Die Flaniermeile in die City ist mit dem Fahrrad etwa 10 min entfernt und beginnt am Lister Platz. Hier wird das jährliche Lister Meilen Fest veranstaltet, welches neben dem Maschseefest das zweitgrößte Straßenfest in Hannover ist.

Energieausweis

Energieausweis
wird bei Besichtigung vorgelegt

Kontakt

Name
Dennis Greinert
Firma
Art of Estate – Immobilienvermittlung
Anschrift
Kastanienallee 17c
14052 Berlin
E-Mail
kontakt@artofestate.de
Telefon
0177-241 70 00
* Pflichtangaben
 SSL-verschlüsselt

Buerozeiten

Mo-Fr

08:30 Uhr - 18:30 Uhr

Sa & So

Nach Absprache

Kontakt Info

Art Of Estate Immobilien GmbH

Kirchstraße 1

15806 Zossen

+49 177 2417000

Copyright © 2026 Art Of Estate. All Rights Reserved.