Einzigartiger Dachgeschossrohling in bester Lage von Hannover-List
Willkommen zu einer seltenen Gelegenheit in einer der begehrtesten Lagen von Hannover!
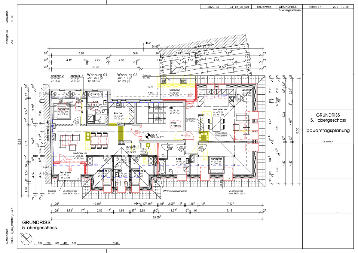
In einem aufwendig kernsanierten Mehrfamilienhaus erwartet Sie ein exklusiver Dachgeschossrohling mit enormem Potenzial. Die Immobilie bietet ca. 241 m² Nutzfläche und ist bereits mit einer genehmigten Baugenehmigung ausgestattet, sodass Sie Ihre individuellen Wohnträume zeitnah realisieren können.
Highlights des Objekts:
Ca. 241 m² Nutzfläche: Großzügiges Raumangebot mit vielfältigen Gestaltungsmöglichkeiten.
Baugenehmigung vorhanden: Ihre Planung kann direkt umgesetzt werden.
Abgeschlossenheitsbescheinigung (AB) liegt vor: Rechtliche Voraussetzungen für die eigenständige Einheit/en sind erfüllt.
Erneuerte Zu- und Abwasserleitungen: Modernisierte Hausinfrastruktur für höchste Wohnqualität.
Vorbereitete Dachflächenfenster: Der Zimmermeister hat bereits Vorarbeiten für eine optimale Lichtdurchflutung getroffen.
Hohe Decken: Eindrucksvolle Raumhöhe für ein luftiges und weitläufiges Wohngefühl.
Geplante und genehmigte Terrassen/Loggien: Genießen Sie zukünftig zwei Freiflächen mit einzigartigem Ausblick.
Neue Heizungsanlage: Effiziente Luftwärmepumpe in Kombination mit einer modernen Gaszentralheizung.



